NAVE LOGÍSTICA EN ALCALÁ DE GUADAÍRA
Alcalá de Guadaíra, Sevilla
Tipo de Operación
En alquiler
Superficie
57.727m²
Ubicación
Alcalá de Guadaíra, Sevilla
Nave logística ubicada en Alcalá de Guadaíra, en el área metropolitana de Sevilla, con acceso directo a la A-92 y la SE-40, y excelentes conexiones con la A-4 y la red nacional de autopistas.
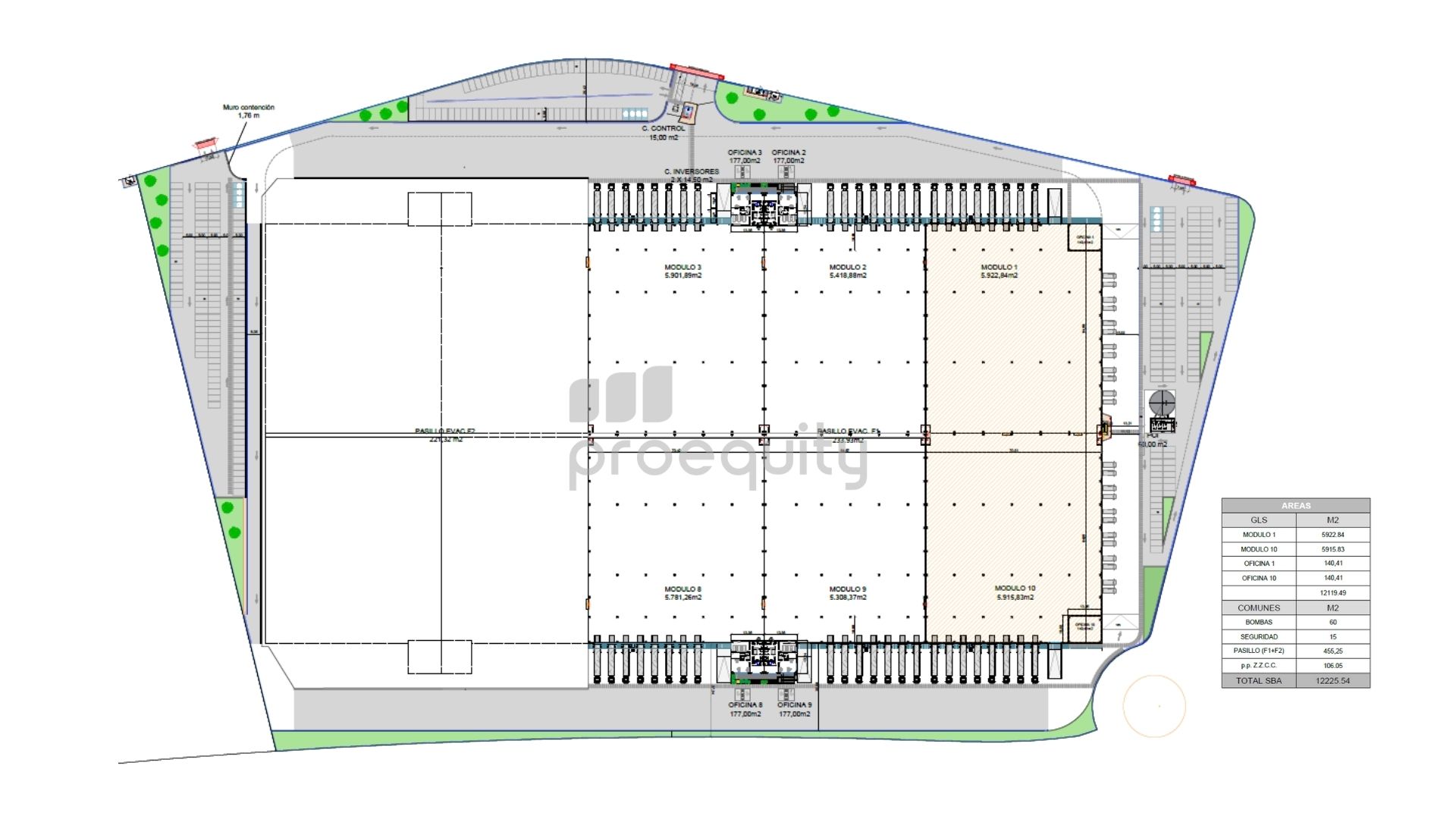
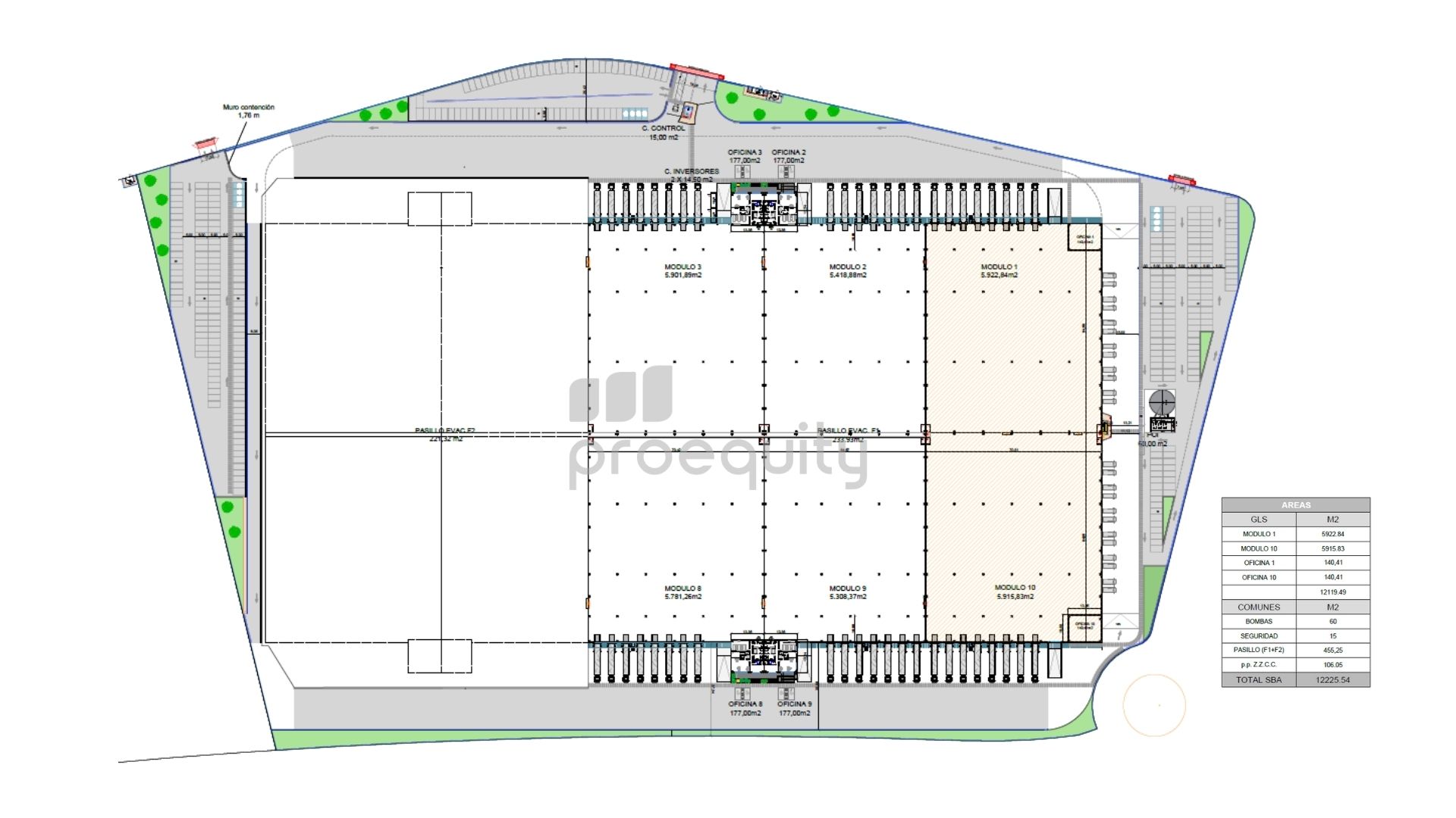
Cuenta con una superficie total alquilable de 57.727 m² sobre parcela independiente de 99.163 m² (Fase 1: 35.581 m² en módulos desde 6.000 m²).
La superficie total se distribuye en 55.311,80 m² de almacén y 1.671 m² de oficinas.
Oficinas acondicionadas.
La zona se encuentra próxima al Aeropuerto de Sevilla y al Puerto de Sevilla, con enlaces por carretera hacia el Puerto de Algeciras, Madrid, Lisboa y el corredor mediterráneo, garantizando una conectividad logística estratégica a nivel nacional e internacional.
Año de construcción: 2026.
Certificación objetivo BREEAM Excellent.
Entorno logístico consolidado.
Disponibilidad: Fase 1 Q4 2026.
Cuenta con una superficie total alquilable de 57.727 m² sobre parcela independiente de 99.163 m² (Fase 1: 35.581 m² en módulos desde 6.000 m²).
La superficie total se distribuye en 55.311,80 m² de almacén y 1.671 m² de oficinas.
Oficinas acondicionadas.
La zona se encuentra próxima al Aeropuerto de Sevilla y al Puerto de Sevilla, con enlaces por carretera hacia el Puerto de Algeciras, Madrid, Lisboa y el corredor mediterráneo, garantizando una conectividad logística estratégica a nivel nacional e internacional.
Año de construcción: 2026.
Certificación objetivo BREEAM Excellent.
Entorno logístico consolidado.
Disponibilidad: Fase 1 Q4 2026.
✓ Año de construcción: 2026.
✓ Certificación objetivo BREEAM Excellent.
✓ Entorno logístico consolidado.
✓ Disponibilidad: Fase 1 Q4 2026.
✓ Certificación objetivo BREEAM Excellent.
✓ Entorno logístico consolidado.
✓ Disponibilidad: Fase 1 Q4 2026.
A consultar aquí
✓ 74 muelles de carga
✓ Playa de maniobra 35 m
✓ Altura libre: 10,85 m
✓ Plazas parking: 385 (ligeros)
✓ PCI riesgo alto 8
✓ Playa de maniobra 35 m
✓ Altura libre: 10,85 m
✓ Plazas parking: 385 (ligeros)
✓ PCI riesgo alto 8
✓ Sistema de iluminación LED








